
螺紋金屬管浮子流量計
- 品*:JKM/凱銘儀表
- 型號:JKM-LZ
- 測量范圍:0.0025~60m3/h
- 精度等級:±1.5%
- 公稱通徑:DN15~DN100
- 適用介質:液體、氣體
- 工作壓力:1.6~4.0MPa
- 工作溫度:-80℃~200℃
- 供電方式:24VDC
- 訂貨號:KHY812166XWQ
螺紋金屬管浮子流量計產品概況
LZ 系列金屬管浮子流量計結構簡單、工作可靠、準確度高、適用范圍廣。與玻璃轉子流量計相比較能耐較高的壓力。LZ 系列流量計具有就地指示、電遠傳、限位開關報警、耐腐蝕、夾套型、阻尼型和防爆等品種。廣泛應用于國防、化工、石油、冶金、電力、環保、醫藥和輕工等部門的液體、氣體流量的測量與自動控制。
流量計檢測部分零件均有 1Cr18Ni9Ti 不銹鋼材料制成 ,特殊場合也可由 Cr18Ni12Mo2Ti 或 F46 等耐腐蝕材料組成。流量計除特殊規格外,高度均為 250 mm。
連接法蘭采用 GB/T9119.8~10 標準,也可根據用戶特殊要求定制。

螺紋金屬管浮子流量計原理結構
由下而上的流體通過直立的測量管時,浮子在壓差的作用下上升、浮子上升的高度即代表流量的大小。并通過浮子中的磁鋼與指示器中的磁鋼耦合聯結傳遞給指示器,帶動指示器中的指針轉動。

螺紋金屬管浮子流量計技術要求
1. 測量范圍:水(2.5~60000)L/h;空氣(0.07~2000)m3/h (在 0.101025 MPa、20℃)。
2. 準確度等級: 1.5、2.5 級。
3. 量 程 比: 10:1。
4. 工作壓力: DN15~50,4 MPa; DN80~100,1.6MPa。
5. 介質溫度: -80℃~200℃(內襯 F46 流量計 0℃~80℃)。
6. 液體介質粘度:DN15<5mPa·s;DN25~100<5mPa·s。
7. 連接方式:法蘭連接、螺紋連接等;法蘭采用 GB/T9119.8~10 標準。
8. 總 長 度: DN15~100 250mm。
9. 測量管材質:普通型 1Cr18Ni9Ti,耐腐型 Cr18Ni12Mo2Ti,316L、316 襯 F46 等。
如用戶有特殊要求可特殊訂貨。
螺紋金屬管浮子流量計電性能
1. 輸出信號:二線制(4~20)mA、三線制(0~10)mA。
2. 線 性 度:1%;
3. 電 源:DC 24(1±)V。
4. 功率消耗:25 mW。
5. 環境溫度:-25 ℃~55 ℃。
6. 溫度影響:0.5%/10 ℃。
7. 負載電阻:DC (0~10)mA (0~1)kΩ; (4~20)mA (0~600)Ω。
8. 接線電纜:RVVP 3×28/0.15。
9. 防爆等級:ExibⅡ2CT5。
10. 配安全柵型號:LB906 型。
11. 電遠傳變送器:HK-H810 型或 ESK-I(二線制)。;
12. 接 線 圖:

螺紋金屬管浮子流量計限位開關報警裝置
對 LZ 型指示器可以安裝限位開關報警裝置
1. 技術參數:
a) 供電電源:AC 220(1±10%)V;
b) 功 耗:≤3 W;
c) 工作溫度:-25 ℃~60 ℃。
2. 接 線 圖:

3. 限位值的設定:限位開關的位置可以通過改變感應頭的位置任意設定。
螺紋金屬管浮子流量計型號規格
1. 型號

2. 選型

2. 流量范圍
流量范圍見表 2

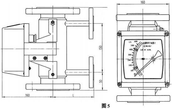
螺紋金屬管浮子流量計安裝尺寸
1. LZ

2. GB/T911.8~10



螺紋金屬管浮子流量計使用與維修
1. 安裝流量計之前一定要將管道內的焊渣、雜物清理干凈。
2. 流量計必須垂直于地面安裝其傾斜度不得超過 2°。否則會影響測量準確度。
3. 為了確保流量計的測量準確性,應在流量計的進口端增加不少于 10DN 的直管段,出口端不少于 5DN 的直管段,測量時調節控制閥必須安裝在流量計的下游。
4. 若被測介質為大的脈動流或兩相流,應在流量計的上游安裝緩沖器來消除或減弱脈動,保證介質的流動是單相穩定的,同時,建議流量計*好使用阻尼型的。
5. 若被測介質較臟或含有導磁顆粒時,應在流量計的上游安裝過濾器或磁過濾器。
6. 流量計的安裝應能適當支撐管道的振動或減少流量計的軸向負荷,否則應增加固定流量計的支撐。
7. 為了便于流量計的保養維修,磁過濾器的清洗以及用戶管路的定期維護保養,建議使用如圖所示的旁路管道。
8. 當流量計用于氣體測量時,應保證管道內的工作壓力不少于 5 倍流量計的壓力損失,使流量計能夠穩定正常動作。
9. 對電遠傳及帶報警限位開關的流量計在使用前,打開儀表蓋,按接線圖示正確接線。對于報警型的旋松限位開關處的螺絲,用戶根據需要設定限位報警位置,并旋緊螺絲,復原后使用。
10. 按儀表指示器中的警示*,取出運輸中防止浮子振動的阻動件,復原后再使用儀表。
11. 若開啟流量計時,由于管道內沒有壓力或系統還未達到儀表正常使用的工作壓力,必須緩慢開啟控制閥,直到系統正常,儀表方可使用,否則容易造成指針跳動或浮子的突然撞擊而損壞的現象。
12. 用戶使用時,若被測流體的密度與水不同時,或被測氣體的參數和工作狀態與制造廠家規定不同時應對流量計示值讀數進行換算,換算方法見附錄。
螺紋金屬管浮子流量計儀表常見故障的維修
常見故障及排除方法見表 5:

以上常見故障,如用戶不能自行排除,請送回廠家維修或向廠家咨詢。
螺紋金屬管浮子流量計防爆產品使用注意事項
LZD 系列金屬管浮子流量計,經**級儀器儀表防爆安全監督站(NEPSI)檢驗,符合GB3836.1 和 GB3836.4 標準規定的要求,產品防爆標志為 ibllCT5。用戶在使用產品時應注意下列事項。
1. 金屬管浮子流量計外殼沒有接地端子,用戶在使用時應可靠接地。
2. 金屬管浮子流量計的*大使用環境溫度為-25 ℃~55 ℃。
3. LZD 系列金屬管浮子流量計必須與 LB906 齊納安全柵配套使用構成本安防爆系統。系統接線如圖 6。

4. 本安全系統的布線應盡量避免外界電磁干擾的影響,并將電纜分布參數控制在 0.08μF 和 2 mH 以內。
5. 安全柵必須安裝在安全場所。安全柵的安裝、使用和維護應遵守使用說明書。
6. 與安全柵相連的控制室儀表的*高工作電壓或其內部可能產生的*高電壓不得高于250Vrms。
7. 用戶在安裝、使用和維護 LZD 系列金屬管浮子流量計時,務必認真閱讀產品說明書,并同時遵守《中華人民共和國爆炸危險場所電氣安全規程》。
螺紋金屬管浮子流量計設計選用及訂貨須知
1. 根據測量流體是氣體或液體。正確選用氣體或液體金屬管浮子流量計。
2. 被測流體無腐蝕性選用普通型,有腐蝕性選用防腐型。
3. 訂貨時請注明被測介質名稱、流量、管道通徑及工作壓力、溫度、密度、粘度等情況。我公司可根據用戶提出的密度等進行刻度修正,制作特殊的流量標尺。
4. 根據被測流體的測量范圍、應用場合等選用合適型號的規格品種。如有特殊要求的流量計,請來公司或來函與營銷科聯系。
附錄
1. 流量計用于測量液體流量時,制造廠是用常溫下清潔的水作為校驗流體標尺分度,若被測流體的密度與水不同時,應對流量示值讀數進行換算。換算公式如下:

式中:
Q1-工作狀態下流量;
Q0-流量計示值流量或輸出信號所對應的流量;
ρf-浮子的平均密度;
ρ1-被測液體在工作狀態下的密度;
ρ0-20 ℃ 時水的密度(998.2kg/m3)。
2. 流量計用于氣體流量時,制造廠以標準狀態(20℃、101.325kPa)下的干空氣作為氣體標尺分度的。若被測氣體的工作狀態與制造廠規定不同時,應對流量計示值讀數進行換算,換算公式如下:

式中: Q1-工作狀態下的氣體流量換算到標準狀態下的流量;
Q0-流量計示值流量;
ρ1-工作狀態下被測干氣體的密度
ρ0-標準狀態下的干空氣的密度,(1.205kg/m3);
P1-工作狀態下被測干氣體的壓力(即表壓與大氣壓之和)kPa;
P0-標準狀態時的壓力, =101.325 kPa;
T1-工作狀態下被測干氣體的熱力學溫度,K;
T0-標準狀態時的熱力學溫度; =293.15 K。
3. 由于用戶的工作狀態各不相同,所以請注明被測介質名稱、流量及通徑,另請注明介質壓力、溫度、密度及粘度,以便我們幫助用戶正確選型。還可以根據用戶要求,制作成工作狀態或工作狀態下的氣體換算成標準狀態下的流量標尺。
4. 一般被測流量可選用普通型(1Cr18Ni9Ti);帶有腐蝕性流體時可耐腐型(襯氟塑料)。如有不詳之處,我們可提供技術咨詢。
上一篇:JKM-LZ垂直安裝浮子流量計
下一篇:JKM-LZ高溫型金屬浮子流量計


